2006Galerie Emila Filly - rekonstrukce
Plocha galerie: |
340 m2 |
Plocha zázemí: |
18 m2 |
spolupáce s Jan Jehlík architektonická kancelář a akad.arch.Pavlem Kolíbalem
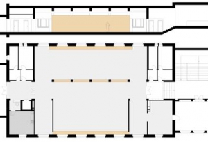
Budova Kulturního domu Ústí nad Labem byla navržena v roce 1959 (KPÚ Hradec Králové – architekti Jaroslav Lácha, Jan Rejchl) a postavena v počátku šedesátých let. Budoucí prostor Galerie Emila Filly se nachází ve 3. nadzemním podlaží budovy C Kulturního domu. Jedná se o prostory původně navržené a realizované pro výstavní a přednáškovou činnost, v poslední době využívané soukromou projekční firmou. V rámci tohoto využití byly původní prostorné místnosti předěleny lehkými příčkami včetně účelových rozvodů elektro a stěny byly obloženy obklady poplatnými své době (80.léta). Kromě těchto zásahů nebyla provedena žádná další úprava ani rekonstrukce od doby realizace objektu. V původním stavu jsou proto kromě stavebních konstrukcí i výplně otvorů a všechny technologické části (elektrorozvaděče, podlahové vytápění, výtah apod.).
Cílem navrhovaného řešení bylo vytvořit důstojný a technicky dobře připravený prostor pro moderní galerijní provoz typu „kunsthalle“, který bude umožňovat široké spektrum výstavní činnosti (od „akcí“ po závěsné obrazy). Proto jedním ze základních kritérií rekonstrukce a úprav je maximální otevřenost výstavního prostoru a jeho flexibilita. To znamená, že v rámci dané dispozice a konstrukčních limitů domu budou odstraněny všechny přebytečné příčky a přepážky a vzniklý „kubus“ bude vyčištěn do stavu tzv. „white boxu“ jako optimálního prostředí pro vystavovaná díla. Nejdůležitějšími prvky se tak stanou velkorysý prostor, pohledově neutrální povrchy stěn, stropů a podlah a technické řešení výstavních panelů a osvětlení.
